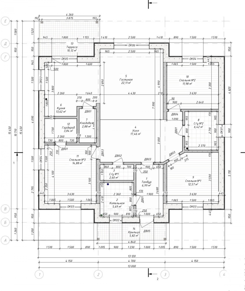
| Типовой проект дома из газобетона 06-07. 09.09.2025 | Общая площадь дома 136,98 м2.
Габариты дома 13 120 х 15 450 мм.
Наружные стены газобетонные блоки 375 мм.
Перегородки несущие 250 мм, не несущие 150 мм.
Чердачное перекрытия, стропильная система доска 45х195 мм.
Кровельное покрытие металлочерепица.
Утепление по чердачному перекрытию 200 мм.
Фасад клинкерная плитка, утепление 50 мм.
Фундамент монолитная плита.
Проект в электронном виде в файле PDF.
    
| | | Контактная информация | | Цена: | 15,000 руб. | | Контактное лицо: | Елена | | Город: | Санкт-Петербург | | Телефон: | 89817817866 | | web-адрес: | Наш сайт : твой-проект78.рф |
| |
|